0
  • Acheter De l'ancien
  • Louer
Dans un rayon de
Budget
Mini
Maxi

    Faites estimer votre bien par un professionnel

    Estimer votre bien

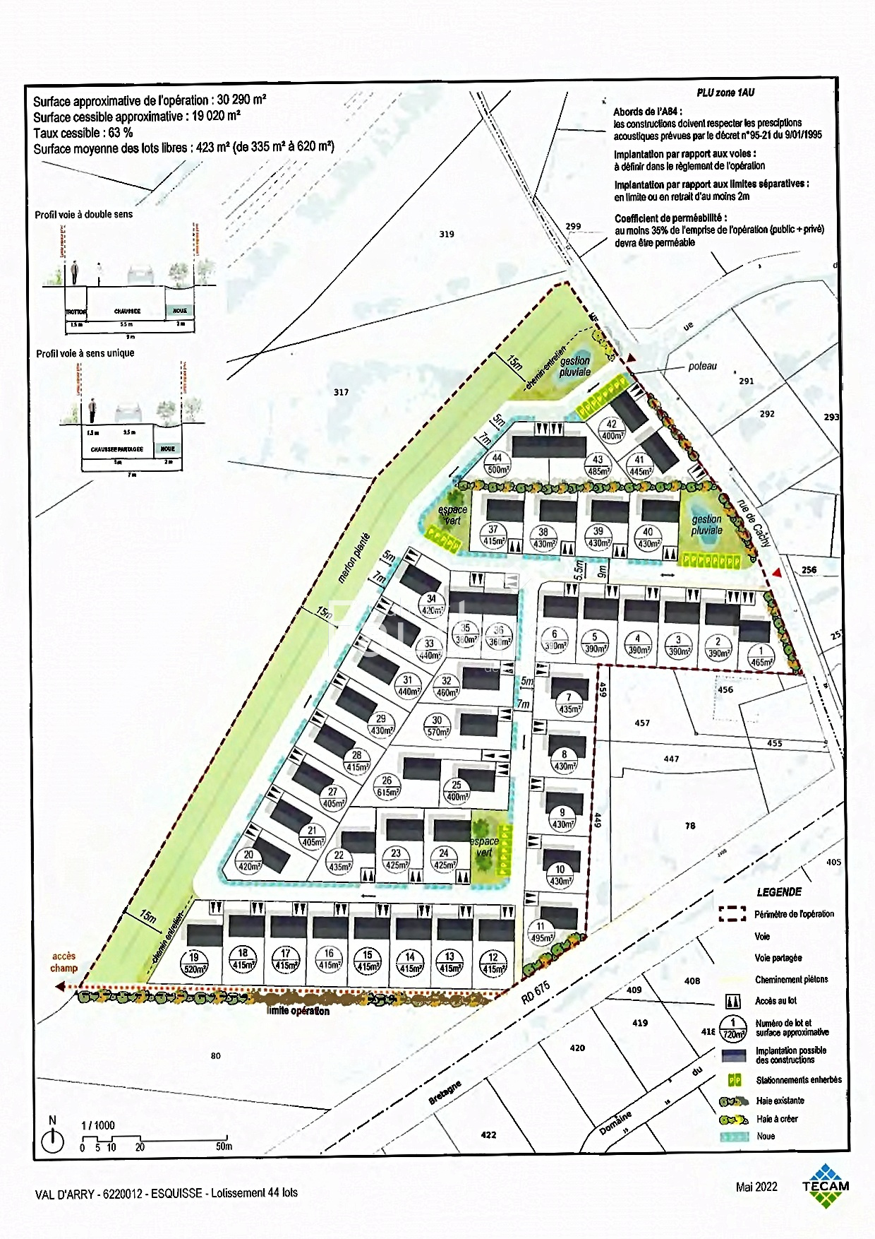
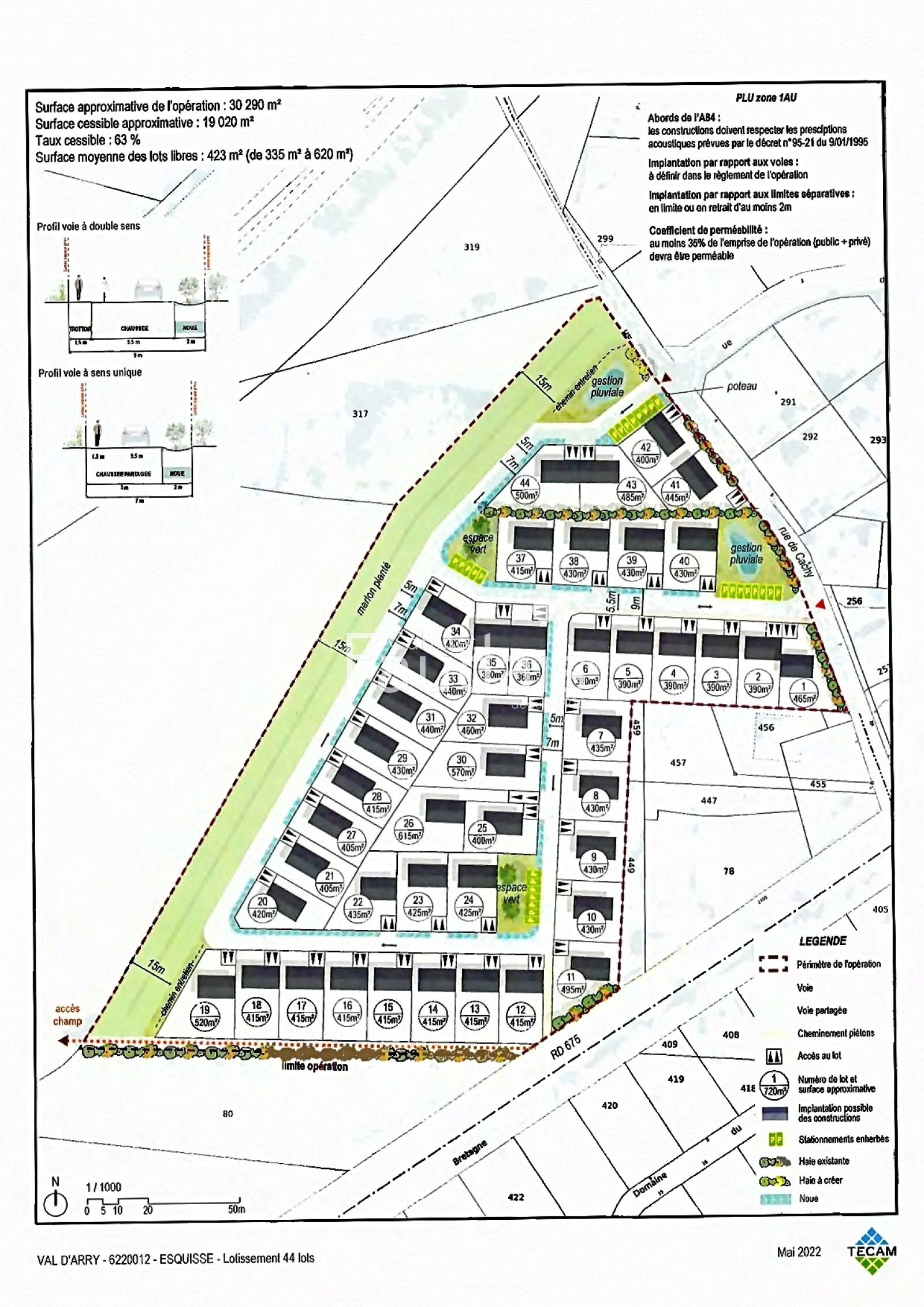
    TERRAIN VIABILISE LIBRE CHOIX DU CONSTRUCTEUR

    Val d'Arry (14210)
    Réf : 60491

    Axe caen Villers-Bocage dans un village avec tous les services LE CABINET FAUDAIS vous propose ce terrain viablisé de 404 m² formant le lot 42 de ce lotissement de 44 parcelles;

     Le terrain est en accès  direct depuis la sortie Noyers-Bocage de l'A84, à 15 minutes du périphérique caennais pour des trajets domicile-travail simplifiés Commune complète et autonome : tous commerces et services sur place pour un confort de vie au quotidien sans dépendance à l'agglomération Large offre de parcelles avec 44 terrains viabilisés pour un choix optimal selon vos besoins et votre budget Permis de construire déposables immédiatement


    Les informations sur les risques auxquels ce bien est exposé sont disponibles sur le site Géorisques
    Prix du bien 71 000 €

    Caractéristiques du bien

    Caractéristiques Valeurs
    Code postal 14210
    surface terrain 404 m²
    Terrain constructible OUI
    Surface constructible 404
    Terrain Viabilisé OUI

    Infos financières

    Caractéristiques Valeurs
    Prix de vente 71 000 €
    Les honoraires d'agence seront intégralement à la charge du vendeur  
    Ce bien vous intéresse ?
    Fieldset par défaut
    Fieldset par défaut
    Validation

    * Champs obligatoires

    Contacter l'agence
    Validation
    Les informations recueillies sur ce formulaire sont enregistrées dans un fichier informatisé par La Boite Immo agissant comme Sous-traitant du traitement pour la gestion de la clientèle/prospects de l'Agence / du Réseau qui reste Responsable du Traitement de vos Données personnelles. La base légale du traitement repose sur l'intérêt légitime de l'Agence / du Réseau. Elles sont conservées jusqu'à demande de suppression et sont destinées à l'Agence / au Réseau. Conformément à la loi « informatique et libertés », vous disposez des droits d’accès, de rectification, d’effacement, d’opposition, de limitation et de portabilité de vos données. Vous pouvez retirer votre consentement à tout moment en contactant directement l’Agence / Le Réseau. Consultez le site https://cnil.fr/fr pour plus d’informations sur vos droits. Si vous estimez, après avoir contacté l'Agence / le Réseau, que vos droits « Informatique et Libertés » ne sont pas respectés, vous pouvez adresser une réclamation à la CNIL. Nous vous informons de l’existence de la liste d'opposition au démarchage téléphonique « Bloctel », sur laquelle vous pouvez vous inscrire ici : https://www.bloctel.gouv.fr Dans le cadre de la protection des Données personnelles, nous vous invitons à ne pas inscrire de Données sensibles dans le champ de saisie libre.
    Ce site est protégé par reCAPTCHA, les Politiques de Confidentialité et les Conditions d'Utilisation de Google s'appliquent.