0
  • Acheter Du neuf
  • Louer
Dans un rayon de
Budget
Mini
Maxi

    Faites estimer votre bien par un professionnel

    Estimer votre bien

    Maison dans résidence sécurisée

    La Haye-du-Puits (50250)
    Réf : 11244

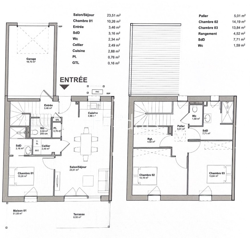
    Situé au coeur de La Haye du Puits, Le CABINET FAUDAIS vous présente cette maison offrant une vie possible de plain pied !

    RDC : entrée, une pièce de vie avec espace cuisine, 1 chambre, salle d'eau, wc, cellier et placard.

    Etage : Palier desservant 2 chambres, salle d'eau, wc et rangement. 

    Terrasse, garage et jardin privatif de 120 m².

    La résidence répond aux dernières règlementations en vigueur RE2020.

    Le tout dans une résidence sécurisée avec portail électrique et visiophone et toutes les commodités à pied.

    Pour tout renseignement complémentaire, vous pouvez nous contacter au 02.33.75.65.02 ou venir à  notre rencontre à l'agence de La Haye du Puits. 


    Les informations sur les risques auxquels ce bien est exposé sont disponibles sur le site Géorisques
    Prix du bien 369 000 €
    Pièce(s) 4
    Chambre(s) 3

    Caractéristiques du bien

    Caractéristiques Valeurs
    Code postal 50250
    Surface habitable (m²) 95,90 m²
    Nombre de chambre(s) 3
    Nombre de pièces 4
    Nombre de niveaux 2
    Nb de salle d'eau 2
    Mode de chauffage Pompe à chaleur
    Type de chauffage Air pulsé
    Format de chauffage Individuel
    Interphone OUI
    Visiophone OUI
    Terrasse OUI
    Nombre de garage 1
    Exposition Sud
    Année de construction 2017

    Infos financières

    Caractéristiques Valeurs
    Prix de vente honoraires TTC inclus 369 000 €

    Bilans énergétiques

    DPE GES
    Ce bien vous intéresse ?
    Fieldset par défaut
    Fieldset par défaut
    Validation

    * Champs obligatoires

    Contacter l'agence
    Validation
    Les informations recueillies sur ce formulaire sont enregistrées dans un fichier informatisé par La Boite Immo agissant comme Sous-traitant du traitement pour la gestion de la clientèle/prospects de l'Agence / du Réseau qui reste Responsable du Traitement de vos Données personnelles.
    La base légale du traitement repose sur l’intérêt légitime de l'Agence / du Réseau.
    Elles sont conservées jusqu'à demande de suppression et sont destinées à l'Agence / au Réseau.
    Conformément à la loi « informatique et libertés », vous pouvez exercer votre droit d'accès aux données vous concernant et les faire rectifier en contactant l'Agence / le Réseau.
    Si vous estimez, après avoir contacté l'Agence / le Réseau, que vos droits « Informatique et Libertés » ne sont pas respectés, vous pouvez adresser une réclamation à la CNIL.
    Nous vous informons de l’existence de la liste d'opposition au démarchage téléphonique « Bloctel », sur laquelle vous pouvez vous inscrire ici : https://www.bloctel.gouv.fr 
    Dans le cadre de la protection des Données personnelles, nous vous invitons à ne pas inscrire de Données sensibles dans le champ de saisie libre
    Ce site est protégé par reCAPTCHA, les Politiques de Confidentialité et les Conditions d'Utilisation de Google s'appliquent.